90 000 Р 1 140 $ или 978

Информация об помещении

1
Этаж

Состояние и оснащение

Количество этажей
1
Развернуть
Агент
+7 (911) 610-95-31
Начать чат с агентом

Производственное помещение в Новгородская область, Великий Новгород ...

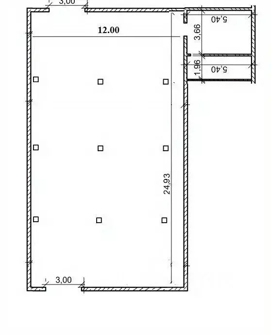
АРЕНДА ОТ СОБСТВЕННИКА. БЕЗ КОМИССИИ ДЛЯ АРЕНДАТОРА------------------------------------------------- -------------------------------------------------- -------------Предлагается в аренду производственное помещение, расположенное по адресу г. Великий Новгород, Вяжищский проезд, площадью 300 кв. м.Отдельными преимуществами помещения являются:- дешевая стоимость электроэнергии (стоимость 1 Квт/ч - 7,)- подведенная мощность 75 КВт- дополнительно возможность аренды 100 кв. м. холодных складов- в стоимость включена аренда ЗУ перед зданием, а также крытого навеса площадью 100 кв. м.- круглосуточная физическая охрана обьекта- высота ворот 3. 4 метра (сквозной проезд 2е ворот)- высота до конька крыши 6 метров- кран балка (высота подъема 3. 5 метра)- пол плитка- собственный су и вода- отопление- помещение оборудовано 2 вытяжкамиСтоимость аренды составляет за кв. м. + компенсация электроэнергии согласно приборов учета

Читать полностью
    Позвонить Написать
    90 000 Р1 140 $ или 978
    Агент
    +7 (911) 610-95-31
    Начать чат с агентом
    Похожие предложения
    Производственное помещение в Волгоградская область, Волгоград ... - Фото 1
    Производственное помещение в Волгоградская область, Волгоград ... - Фото 2
    Сдается складское помещение по адресу: улица Ангарская в Дзержинском районе.Общая площадь: 235 кв. метров. Высокие потолки, ровный пол. Склад расположен на цокольном этаже, подойдет под стеллажное и обычное хранение. Выгодное месторасположение, рядом...
    • -1/2 эт.
    90 000 Р
    Агент
    +7 (989) Показать номер
    Посмотреть контакты
    Производственное помещение в Татарстан, Пестречинский район, ... - Фото 1
    Производственное помещение в Татарстан, Пестречинский район, ... - Фото 2
    Сдаю 150 м2; 300 м2 и 550м2 Производственно-складские помещения в непосредственной близости от федеральной трассы М7 и Казани. Удобные подъездные пути. Возможно использование под производство и складской деятельности.Характеристики:- Теплый склад- Доступ...
    • 1/1 эт.
    90 000 Р
    Агент
    +7 (917) Показать номер
    Посмотреть контакты
    Производственное помещение в Севастополь ш. Камышовое, 15 (180 м) - Фото 1
    Производственное помещение в Севастополь ш. Камышовое, 15 (180 м) - Фото 2
    Сдается в аренду помещение под ПИЩЕВОЕ ПРОИЗВОДСТВО 180 - 500 м, р-н Камышового шоссе, состоит из смежных помещений, комнат в плитке, все коммуникации, парковка, возможна перепланировка Охраняемая территорияКруглосуточный доступ в помещение Удобная...
    • 1/1 эт.
    90 000 Р
    Агент
    +7 (918) Показать номер
    Посмотреть контакты
    Производственное помещение в Ростовская область, Ростов-на-Дону ... - Фото 1
    Производственное помещение в Ростовская область, Ростов-на-Дону ... - Фото 2
    Сдаются в аренду емкости для хранения цемента.Подходит для цемента, гипсаВыработка - 2000 мешков в день.Три емкости: одна 120м3, две по 90м3.Компрессоры на выдув и на закачку.Оперативный показАрт.
    • 1/1 эт.
    90 000 Р
    Агент
    +7 (989) Показать номер
    Посмотреть контакты
    Производственное помещение в Московская область, Сергиев Посад ... - Фото 1
    Производственное помещение в Московская область, Сергиев Посад ... - Фото 2
    Предлагается к аренде теплый бокс общей площадью 97.9 м. кв. Центральное отопление. Электроснабжение 380V. Мокрые точки в этом же здании. Промзона. Закрытый комплекс. Круглосуточная охрана. Отличные логистическое расположение и подъездные пути. Предоставляется...
    • 1/1 эт.
    90 000 Р
    Агент
    +7 (984) Показать номер
    Посмотреть контакты

    Не нашли подходящего объявления?

    Оставьте заявку, и наши риэлторы подберут производственное помещение в районе Великого Новгорода

    (0)